Prodaja / stan / Čukarica / ID: 42542
Žarkovo
Čukarica, Beograd
132.000 €
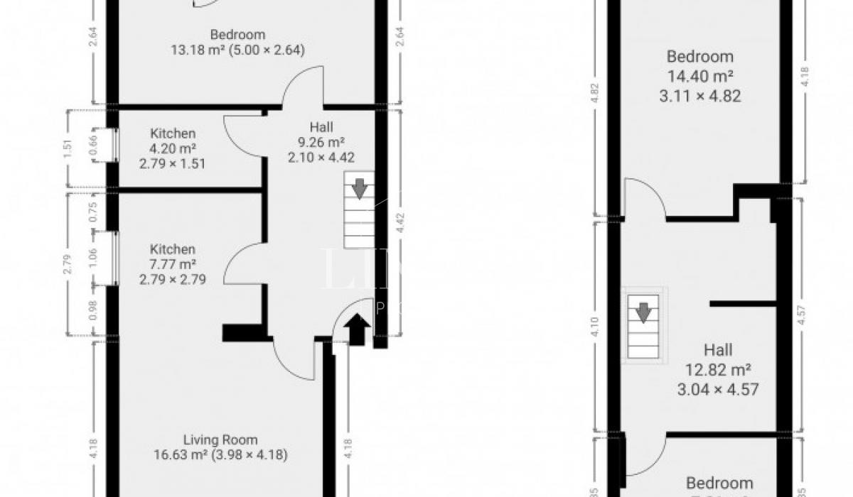
Struktura3.5 soban
Kvadratura89 m2
NameštenostPrazan
Spratnost2 / 2
GrejanjeEG
StanjeRenovirano

OPIS

U prilici smo da Vam predstavimo veoma šarmantan, luxuzno opremljen stan na Ceraku.

Čar ovog mesta je čistiji vazduh Beograda koju dodatno pruža neposredna blizina Košutnjaka.

Stan je dvoetažni i nalazi se na drugom spratu i potkrovlju što predstavlja i ukupnu spratnost zgrade. Po strukturi je četvorosoban i sastoji se od tri spavace sobe od kojih je jedna u donjoj etaži. Poseduje dve terase od kojih se na jednoj izlazi iz dnevne sobe i gleda na ulicu, a na drugoj iz spavace sa pogledom na dvorište zgrade gde deca mogu mirno da se igraju. 

Stan je veoma svetao i sve prostorije ( uključujući kuhinju/trpezariju i kupatilo) imaju prirodnu ventilaciju.

 Grejanje je etažno, na struju. Stan je izuzetno funkcionalan.

Lokacija na kojoj se nalazi ovaj stan je izvrsna, u blizini svih sadržaja potrebnih za dobro organizovan život i odlična je povezanost sa ostalim delovima grada.

 Ova nekretnina je idealna je za mirno stanovanje porodice kao i za poslovni prostor, ali i odlična investicija za izdavanje.

Odlična kupovina. Cena nije fixna.

Broj iz registra posrednika 1181.

DODATNE INFO

Terasa
Duplex
Poslovni prostor
Internet
Telefon
Klima
Dvorište

MAPA

2026. © Sva prava zadržana. Zabranjeno je svako kopiranje sadržaja sajta i slika bez prethodnog odobrenja. Link84 Nekretnine.
Ovaj sajt koristi "kolačiće" kako bi se obezbedilo bolje korisničko iskustvo. Ako želite da blokirate "kolačiće", molimo podesite svoj pretraživač.